Lot 173 Blue Sage CREEK
21315 Grover Street
Elkhorn, NE 68022
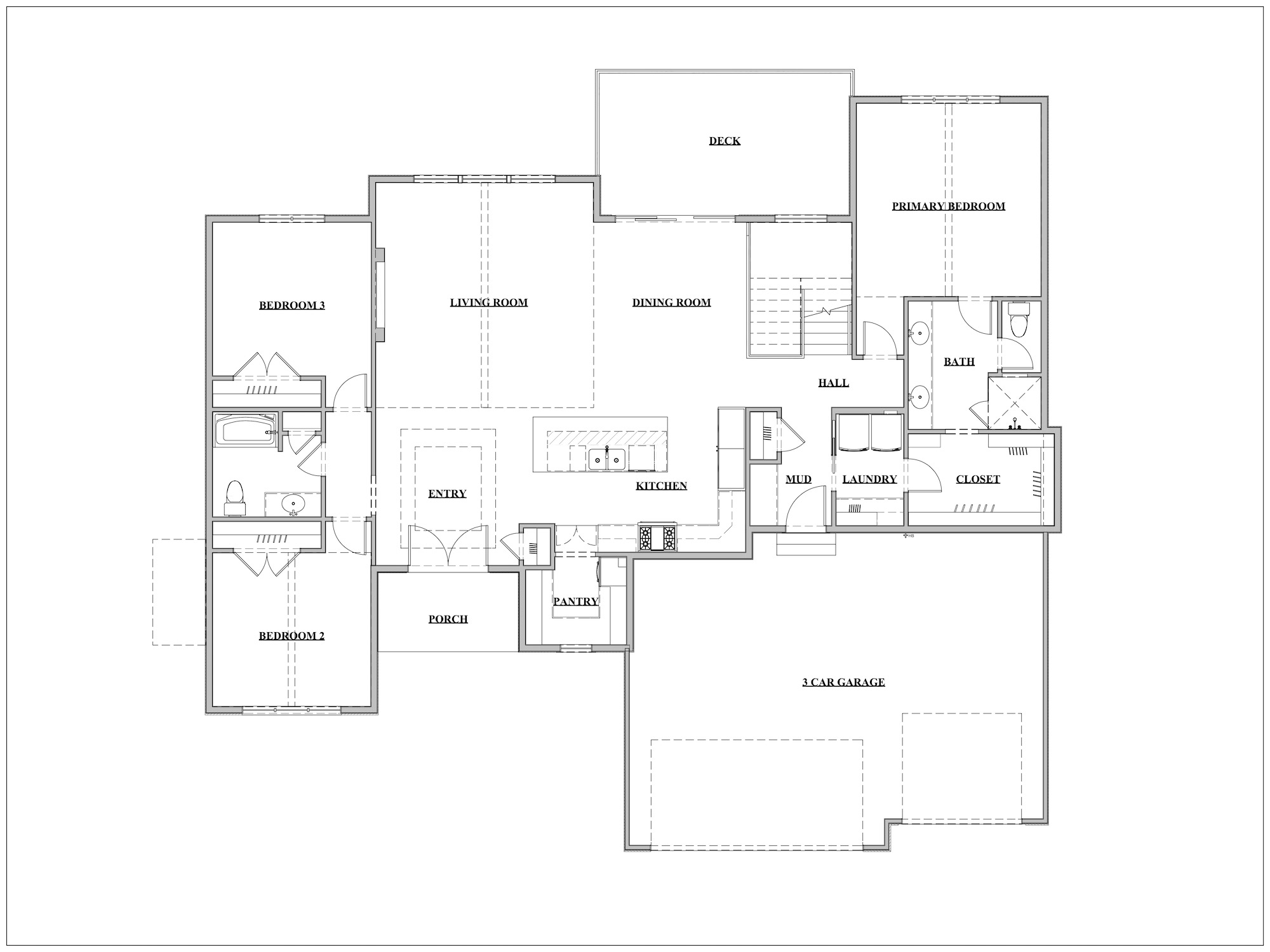
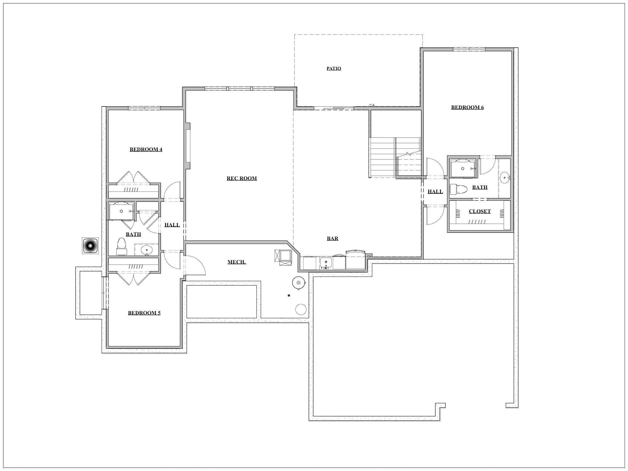
Spacious and beautifully upgraded, this six-bedroom, four-bath home is designed for modern living with family and entertainment in mind. The main floor welcomes you with an abundance of windows, allowing natural light to flood the open-concept living, kitchen, and dining areas. Custom trim work and architectural details flow throughout. The chef’s kitchen impresses with an oversized hidden pantry, upgraded cabinetry, and premium stainless steel appliances. The primary suite boasts a luxurious bath with a massive, frameless heavy glass shower and an upgraded walk-in closet system. The finished lower level offers a private guest suite with a bath, plus two additional bedrooms and a full bathroom. Entertain with ease in the expansive rec room featuring a stylish wet bar. Outside, the home is equipped with a complete pool package for future installation and a gas line ready for a fire pit, making it perfect for backyard gatherings. Prairie Homes Omaha standards include Five Star Energy certification, high-efficiency HVAC, 100% Hardie siding, Enerlux windows, and a one-year builder warranty.
Floor Plan Features
5+ Star Energy Partner
5+ Energy Star Partner
R50 insulation in flat ceilings & R23 insulation in walls
Netted, blown insulation
Sealed openings, trunk lines taped
High Efficiency HVAC Systems
Programmable thermostat with WiFi capability
Outside air intake
Enerlux windows
Therma True Doors
Ceiling fan rough-ins in all bedrooms
2×6 walls
International award-winner
One-year comprehensive warranty
Engineered floor joists
Entire exterior covered in OSB with Advantech Zips System
Two garage door openers with four remotes and one keypad
Three car garage
Nine foot poured concrete foundation
Hardie board siding
Garage drywall is fully finished and painted
Designer Bathrooms
High End Countertops including Quartz, Granite and Dekton
Elongated toilets
Comfort-height cabinets in the master bathroom
Tile or luxury vinyl flooring
Several plumbing selections to choose from
Gourmet Kitchens
Cabinet Selection: birch, 36″ wall cabinets w/ 4″ crown & light rail
Custom Cabinets
High End Countertops including Quartz, Granite and Dekton
Frigidaire and GE appliances
Dovetail and soft-close drawers
Wood or luxury vinyl flooring
Several plumbing selections to choose from
Under and upper cabinet lighting available
Under cabinet electric outlets
OUR PROMISE TO YOU
We promise to be upfront and honest with you throughout the entire build process, so that you can rest assured knowing your needs are being met and your questions are being answered. We’re committed to providing you with unparalleled service from the day we meet until we hand you the keys to your new dream home and you become part of our Prairie Homes Omaha forever family!
Let us help make your dream home a reality – book an appointment today!
GET STARTED NOW!



